- HAUTE COUTURE FAMILIALE - Création d'une maison dans la pente
Mission Complète
Le Houlme
Surface Habitable 250m2
Mission complète
Le Houlme
Surface habitable: 250 m2
Photos de la réalisation
Dessin de conception
Photos Avant- Après




Description
Réalisation d’une maison individuelle sur un terrain en pente.
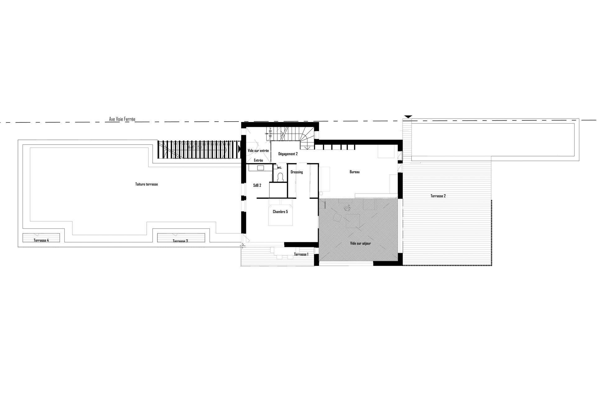
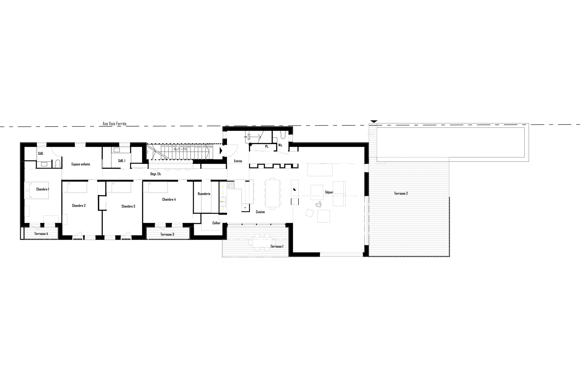
Cinq chambres, un bureau, trois salles de bain, deux caves en sous bassement, une piscine.
Conçue pour répondre aux besoins d'une famille recomposée comprenant 4 enfants, mais également un espace de bureau. Sur un terrain en pente, dans une agglomération urbaine, bénéficiant ainsi du paysage urbain et de vues sur une vallée riche en végétation, mais également d’une orientation optimale, l'implantation du projet s’inscrit "naturellement" selon ces lignes de force. S’étalant le long de la pente, la maison se déploie sur trois plans; le premier celui de son encrage sur le terrain naturel, laissé libre en son milieu pour générer un passage vers la nature pour accéder à la maison, le second celui des espaces communs, de vie étendus à l’extérieur par des terrasses et une piscine, puis l’espace des enfants conçu selon leurs différentes temporalités en fonction de leurs âges, enfin le dernier celui des parents avec le lieu de travail ouvert sur l’espace central de la maison.
Un soucis particulier à été porté sur son intégration afin de toujours conserver une continuité avec l'environnement grâce à de multiples ouvertures cadrant des vues ou optimisant les conditions bioclimatiques du site.
L’art de composer avec la pente - Située dans un environnement urbain privilégié de l’agglomération de Rouen, cette maison individuelle de 5 chambres est une réponse architecturale à un double défi : un terrain en pente et les besoins spécifiques d'une famille recomposée. Le projet ne subit pas le dénivelé, il s’en nourrit. L’implantation s’inscrit naturellement dans les lignes de force du site pour offrir des vues imprenables sur une vallée arborée tout en garantissant une exposition solaire optimale.
Une organisation sur trois plans : entre ancrage et envolée - La maison se déploie selon une stratification intelligente, pensée pour l'intimité de chacun et la convivialité de tous :
- Le socle (L'ancrage) : Le niveau inférieur s'ancre dans le sol. En son centre, un vide structurel a été conservé, créant un passage vers la nature : une véritable respiration qui invite le paysage à traverser l'architecture pour accéder à la demeure. On y trouve deux caves en sous-bassement, alliant fonctionnalité et technique.
- Le cœur de vie (Le plateau commun) : Le second niveau accueille les espaces de partage. Largement ouvert sur l’extérieur, le séjour se prolonge par de vastes terrasses et une piscine qui semble suspendue face à la vallée. Cet étage intègre également l'espace dédié aux quatre enfants, conçu pour évoluer selon leurs différentes temporalités.
- Le belvédère (L'espace parental et professionnel) : Le dernier niveau est dédié à la suite parentale et au bureau. Cet espace de travail, bien que préservé, reste visuellement connecté au cœur de la maison, permettant de concilier vie professionnelle et vie de famille.
Une enveloppe éco-responsable et haute performance - Au-delà de sa silhouette, le projet se distingue par une exigence thermique et environnementale forte. Pour garantir un confort de vie sain et durable, nous avons opté pour une isolation biosourcée performante :
- Mixité d'isolation en laine de bois : L'utilisation de la laine de bois en isolation intérieure et extérieure assure une régulation naturelle de l'hygrométrie et une excellente inertie.
- Confort thermique été comme hiver : Ce choix technique permet un déphasage thermique optimal, protégeant la maison des fortes chaleurs estivales tout en conservant une chaleur douce en hiver.
Chaque ouverture a été pensée comme un cadre de tableau, capturant des fragments du paysage végétal. "Haute Couture Familiale" n'est pas qu'une maison, c'est une enveloppe sur-mesure où la fluidité des parcours et la noblesse des matériaux transforment le quotidien en une expérience architecturale permanente.




































































































