- HAUTE COUTURE FAMILIALE - Création d'une maison dans la pente
Mission Complète
Le Houlme
Surface Habitable 250m2
Mission complète
Le Houlme
Surface habitable: 250 m2
Photos de la réalisation
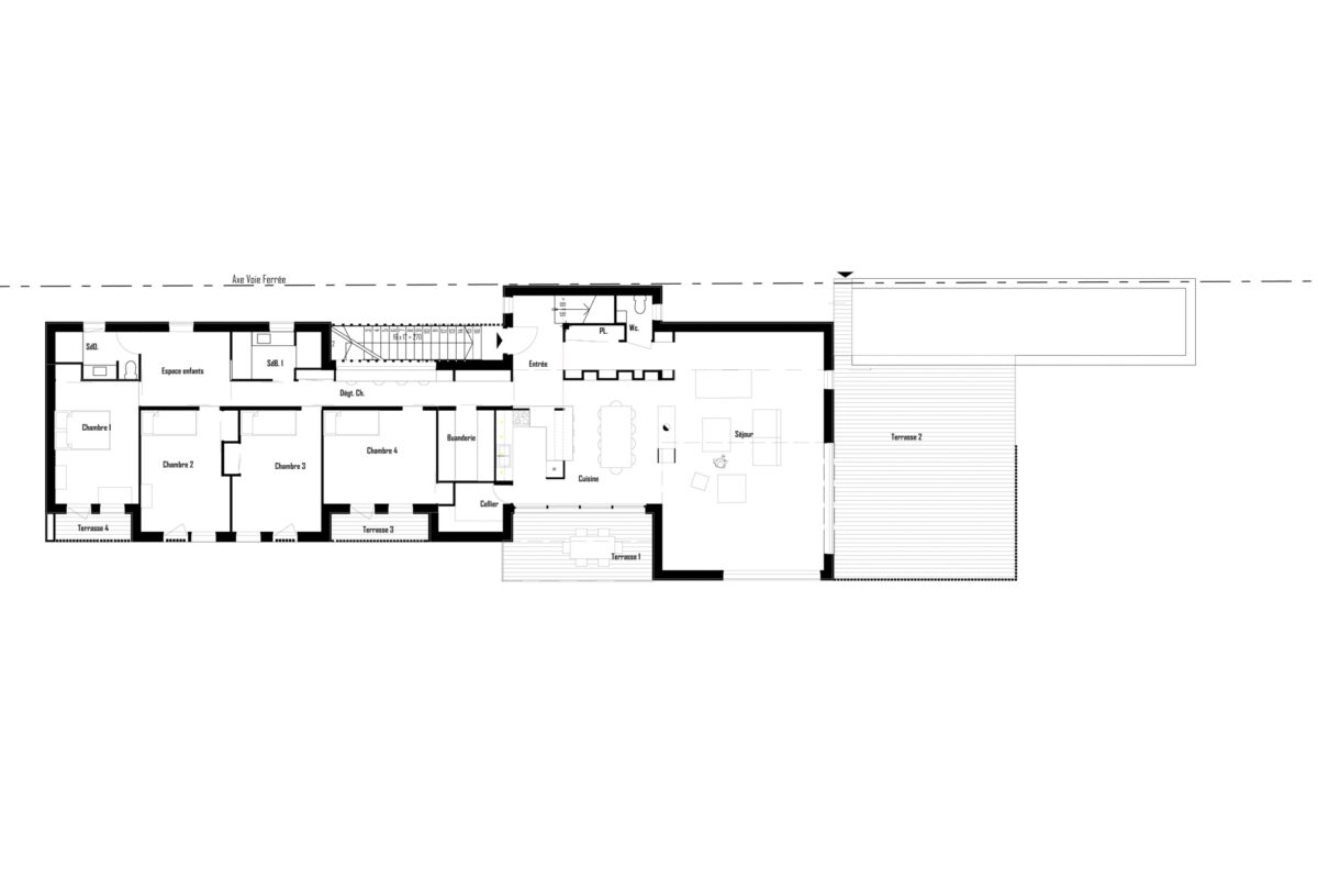
Dessin de conception
Photos Avant- Après




Description
Réalisation d’une maison individuelle sur un terrain en pente.
Cinq chambres, un bureau, trois salles de bain, deux caves en sous bassement, une piscine.
Conçue pour répondre aux besoins d'une famille recomposée comprenant 4 enfants, mais également un espace de bureau. Sur un terrain en pente, dans une agglomération urbaine, bénéficiant ainsi du paysage urbain et de vues sur une vallée riche en végétation, mais également d’une orientation optimale, l'implantation du projet s’inscrit "naturellement" selon ces lignes de force. S’étalant le long de la pente, la maison se déploie sur trois plans; le premier celui de son encrage sur le terrain naturel, laissé libre en son milieu pour générer un passage vers la nature pour accéder à la maison, le second celui des espaces communs, de vie étendus à l’extérieur par des terrasses et une piscine, puis l’espace des enfants conçu selon leurs différentes temporalités en fonction de leurs âges, enfin le dernier celui des parents avec le lieu de travail ouvert sur l’espace central de la maison.
Un soucis particulier à été porté sur son intégration afin de toujours conserver une continuité avec l'environnement grâce à de multiples ouvertures cadrant des vues ou optimisant les conditions bioclimatiques du site.
Réalisation d’une maison individuelle sur un terrain en pente.
Cinq chambres, un bureau, trois salles de bain, deux caves en sous bassement, une piscine.
Conçue pour répondre aux besoins d'une famille recomposée comprenant 4 enfants, mais également un espace de bureau. Sur un terrain en pente, dans une agglomération urbaine, bénéficiant ainsi du paysage urbain et de vues sur une vallée riche en végétation, mais également d’une orientation optimale, l'implantation du projet s’inscrit "naturellement" selon ces lignes de force. S’étalant le long de la pente, la maison se déploie sur trois plans; le premier celui de son encrage sur le terrain naturel, laissé libre en son milieu pour générer un passage vers la nature pour accéder à la maison, le second celui des espaces communs, de vie étendus à l’extérieur par des terrasses et une piscine, puis l’espace des enfants conçu selon leurs différentes temporalités en fonction de leurs âges, enfin le dernier celui des parents avec le lieu de travail ouvert sur l’espace central de la maison.
Un soucis particulier à été porté sur son intégration afin de toujours conserver une continuité avec l'environnement grâce à de multiples ouvertures cadrant des vues ou optimisant les conditions bioclimatiques du site.




































































































