- HORIZON - Création d'un maison à la campagne
Photos de la réalisation
Dessin de conception

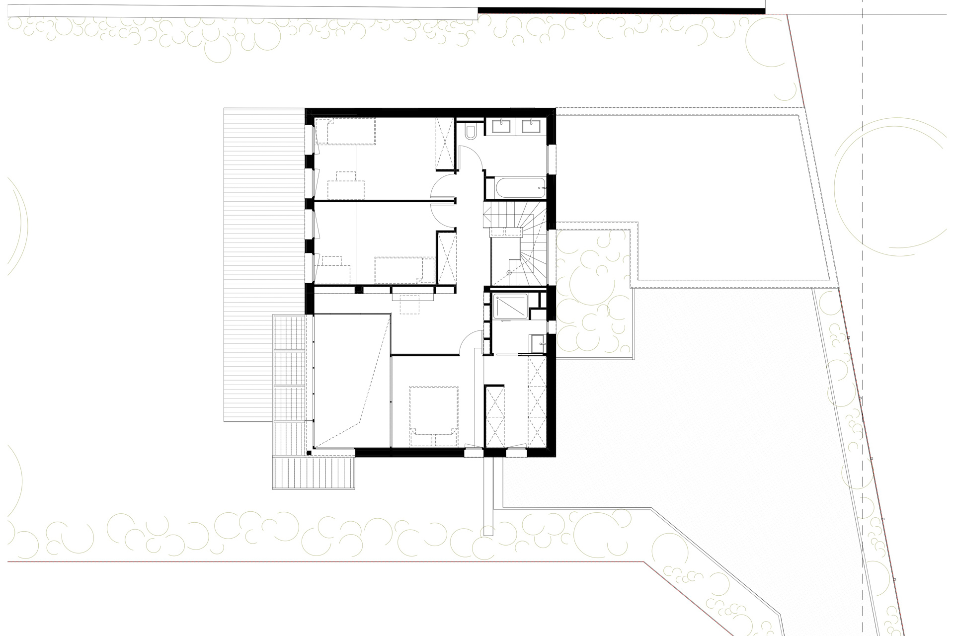
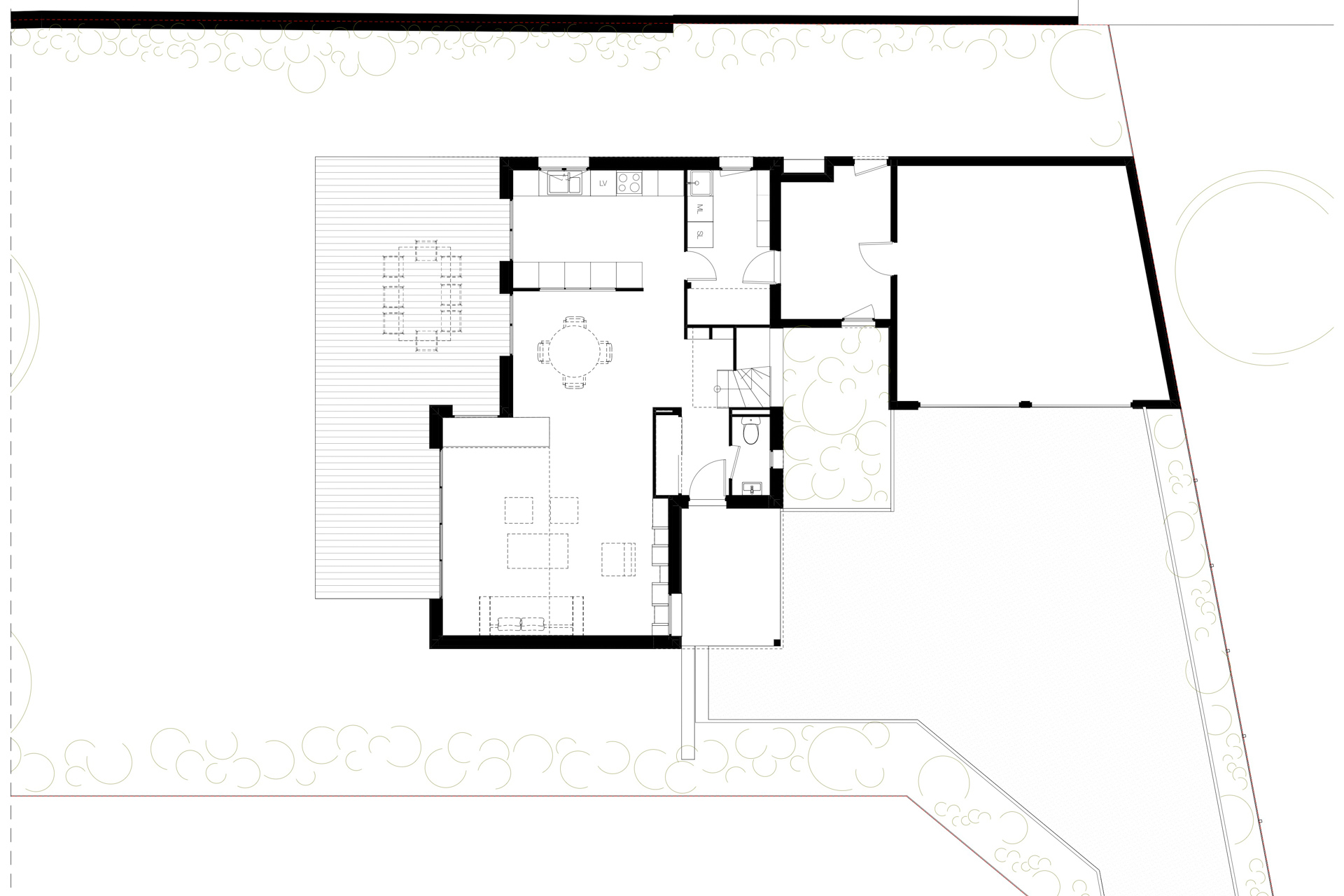
Plan du Rez-de-chaussée et de l'étage
Description
Une implantation stratégique pour libérer l'espace Face à une parcelle exigeante, le parti pris architectural a été de "pousser" la construction vers les limites Nord et Ouest. Cette stratégie permet de libérer une vaste zone de jardin au Sud, offrant ainsi au jeune couple un espace extérieur généreux et ensoleillé. Le garage, disposé perpendiculairement au corps principal, vient border le terrain pour préserver l'intimité du jardin tout en facilitant l'accès depuis la rue.
L'articulation des volumes : le patio comme pivot L’originalité du projet réside dans la séparation de l’habitat et du stationnement en deux volumes distincts. Ils ne sont pas simplement juxtaposés, mais reliés par un patio planté. Ce vide végétal agit comme un poumon au cœur de la parcelle : il apporte de la lumière, crée une transition douce entre l’extérieur et l’intérieur, et met en scène le parcours d’entrée. L’entrée elle-même, traitée en retrait, joue sur la profondeur pour offrir un accueil abrité et élégant.
Une distribution intérieure fluide et hiérarchisée L’organisation intérieure suit une logique de clarté et de confort de vie :
- Le Rez-de-chaussée, le cœur battant : Conçu pour la convivialité, ce niveau regroupe l’ensemble des espaces de vie. La cuisine semi-ouverte permet de garder un lien visuel avec la salle à manger tout en délimitant les fonctions. Le séjour, véritable pièce maîtresse, est largement ouvert sur le jardin par de grandes baies vitrées.
- La transition dedans-dehors : Le prolongement de la cuisine et de la salle à manger vers l’extérieur se fait via une terrasse abritée par un débord de toiture. Ce "creux" dans la façade permet de déjeuner dehors à l'abri du vent ou du soleil trop direct.
- L’Étage, le refuge intime : Un escalier mène à la partie nuit, située à l'étage pour plus de calme. On y trouve trois chambres spacieuses et les salles de bains, bénéficiant d'une vue dégagée sur les environs.
Une esthétique unifiée et protectrice Le traitement des façades vient lier l'ensemble du projet. Le dialogue entre le bardage bois Douglas (chaleureux et horizontal) et le zinc noir (graphique et vertical) assure une continuité visuelle entre la maison et son garage.
La gestion du confort thermique est intégrée au design : au Sud, un pare-soleil en bois protège le séjour des surchauffes estivales, tandis que les débords de toiture calculés font office d'auvent protecteur pour l'entrée et de protection solaire pour la terrasse.

















