- DUO - Extension d'une maison à la campagne
Mission complète
Gonneville-sur-Scie
69m2 crées, 85m2 existants
Mission Complète
Gonneville-sur-Scie
69m2 crées, 85m2 existants
Photos de la réalisation
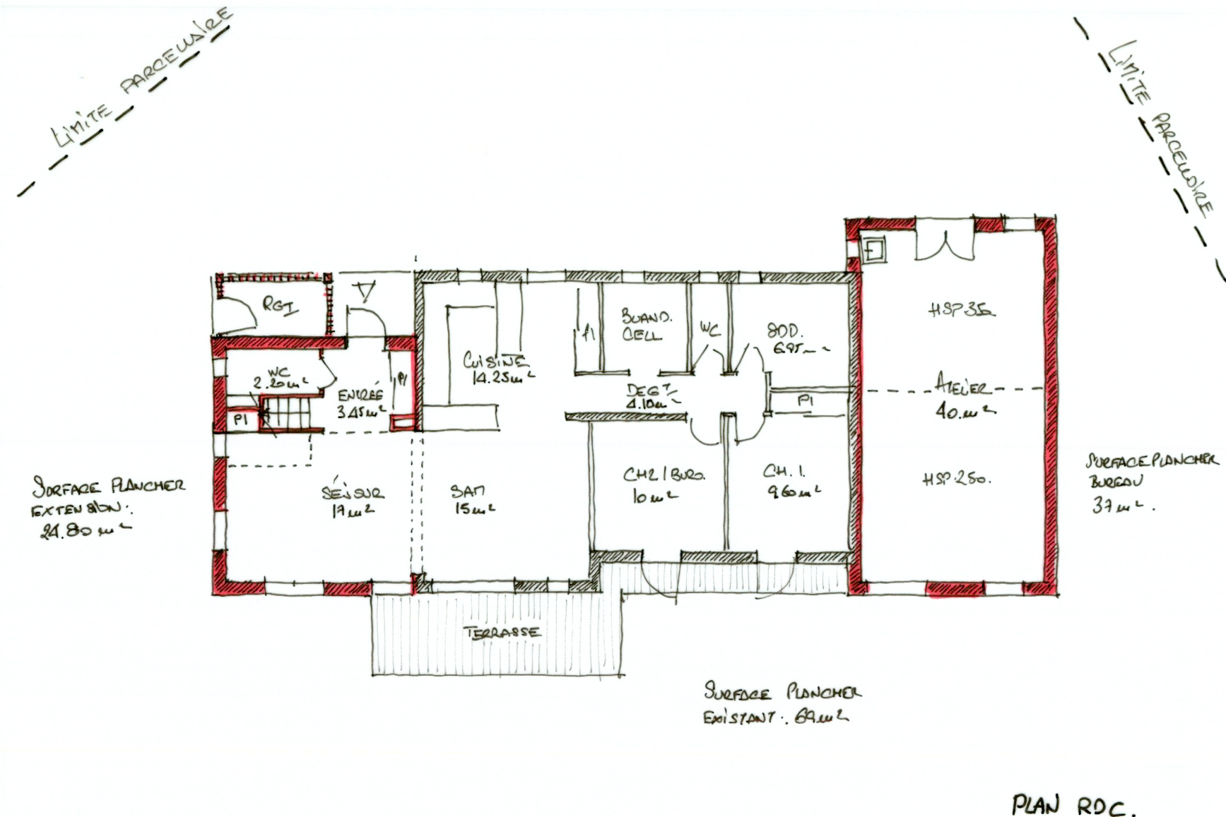
Dessin de conception


Photos Avant- Après


Description
Une réponse architecturale à l'évolution familiale - Situé en plein cœur d’un paysage rural ouvert, ce projet d'extension a été conçu pour accompagner une famille en pleine croissance. L'enjeu était de doubler la fonctionnalité de la maison d'origine en agrandissant les pièces de réception (séjour et salle à manger) et en créant un nouvel étage dédié au repos, comprenant deux chambres et une salle de bain supplémentaire.
L’Atelier : un volume technique et indépendant Au-delà de l’habitat, le programme intègre la création d’un atelier au caractère affirmé. Conçu pour faciliter le quotidien, cet espace bénéficie :
- D’une double accessibilité : Une liaison directe avec la maison pour le confort et une entrée indépendante pour l'aspect pratique.
- D’une conception ergonomique : Une hauteur sous plafond généreuse pour le stockage et un accès de plain-pied total pour la manipulation d’éléments lourds.
Un dialogue de "Boîtes" et de contrastes - L’identité visuelle du projet repose sur la dualité entre la maison réhabilitée et son extension. Le jeu de contrastes est marqué par l'utilisation d'un bardage métallique noir profond, créant une silhouette contemporaine qui s'inscrit avec force dans le paysage. Pour assurer la cohérence avec l'existant, des touches de couleur orange ponctuent les menuiseries, créant un rappel subtil et dynamique avec les détails de la maison d'origine.
Expertise : Une rénovation thermique globale - Parce qu’agrandir signifie aussi optimiser, une attention particulière a été portée à la performance énergétique. Le projet intègre des solutions d’isolation de pointe pour garantir un confort thermique été comme hiver :
- Murs : Isolation entre montants en laine de roche (145mm) renforcée par un doublage thermique (75mm).
- Toiture : Une isolation haute performance (300mm de laine de verre sous rampants et complexe polyuréthane/laine de verre pour les toitures terrasses) assure une étanchéité thermique irréprochable.
Ce projet d’extension prend place en milieu rural, au cœur d’un paysage ouvert. Les propriétaires, dont la famille s’agrandit, ont souhaité adapter leur maison à leurs nouveaux besoins. L’intervention propose d’élargir les espaces de vie et de créer deux chambres ainsi qu’une salle de bain supplémentaires à l’étage. Une terrasse, pensée comme une continuité du séjour, s’ouvre largement sur le paysage environnant pour profiter pleinement du cadre naturel.
La réorganisation de l’entrée et la création d’un atelier complètent le programme. Cet atelier, disposant d’un accès indépendant et d’une liaison directe avec la maison, a été conçu avec une hauteur généreuse pour permettre le stockage de matériel et un niveau de plain-pied avec l’extérieur afin de faciliter la manipulation d’éléments lourds.
Le projet s’articule autour de deux volumes distincts qui dialoguent entre eux : la maison agrandie et l’atelier. Le jeu de contrastes entre les deux « boîtes » crée une dynamique visuelle forte. Le bardage métallique noir, associé à des menuiseries ponctuées de touches orange rappelant les détails de la maison existante, vient souligner cette dualité tout en assurant une intégration harmonieuse au bâti d’origine et au paysage.









