- UP & RETURN - Redonner vie à une maison de famille
Mission Permis de Construire
Rouen
Surface crée 23m2, modifiée 28m2
Mission Permis de Construire
Rouen
Surface crée 23m2, modifiée 28m2
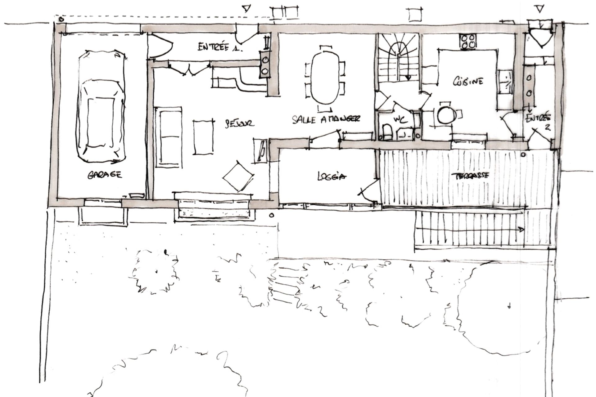
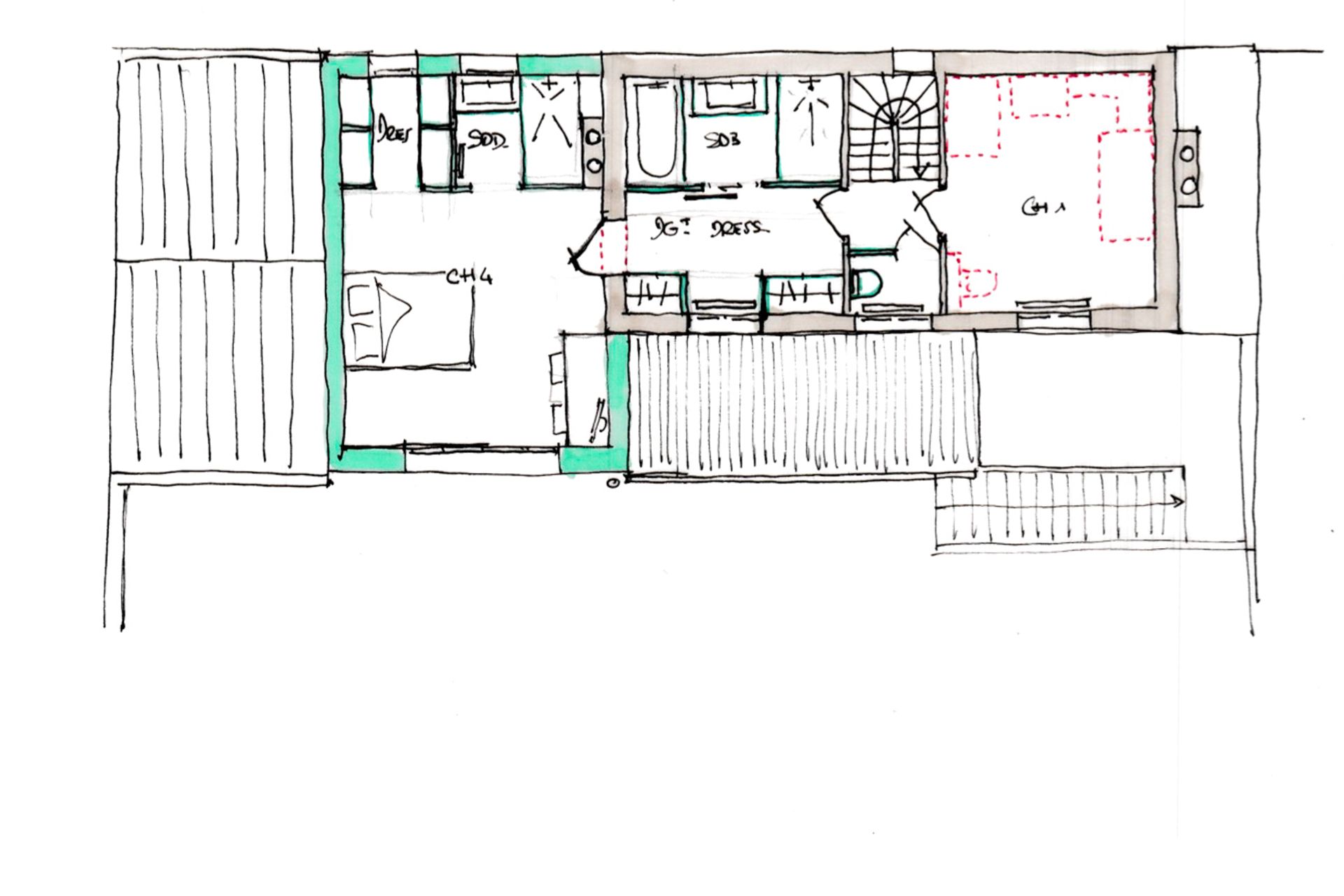
Dessin de conception



Photos Avant- Après




Description
Cette maison a une histoire un peu magique : c’est ici que la maman a grandi. Des années plus tard, la voilà de retour, cette fois avec sa propre tribu – quatre enfants pleins d’énergie. Difficile de résister à l’appel des souvenirs : la famille rachète la maison pour y écrire la suite de l’histoire.
L’espace existant montre des limites : une chambre manque à l’appel, et l’ancienne salle de bain est bien trop grande. L’idée d’ajouter un étage devient alors une évidence. Une surélévation légère, pour que la maison puisse, elle aussi, grandir avec la famille, sans toucher au jardin ni à l’âme du lieu. L’occasion parfaite pour réorganiser entièrement le premier étage et créer une nouvelle salle de bain, mieux placée et plus fonctionnelle.
La nouvelle partie prolonge simplement la maison, tout en douceur. Elle apporte plus de lumière, plus d’air, plus de confort… et surtout une vue exceptionnelle sur la ville et ses clochers. Un moyen d’offrir de l’espace à chacun, tout en préservant ce qui rend cette maison si précieuse : son charme, ses souvenirs, et l’histoire qui continue de s’y écrire.
Quand les souvenirs rencontrent l'avenir - Certaines maisons possèdent une âme qui transcende les générations. C’est le cas de cette demeure, où la propriétaire a fait ses premiers pas. Des années plus tard, l’appel des souvenirs a opéré : elle y revient aujourd'hui avec sa propre "tribu" de quatre enfants. Pour accueillir cette nouvelle énergie sans trahir l’esprit du lieu, la maison devait, elle aussi, apprendre à grandir.
La surélévation : faire grandir la maison sans changer l'âme - Face au manque de chambres et à une organisation intérieure datée (une salle de bain démesurée et peu pratique), la surélévation s'est imposée comme la solution la plus douce et la plus logique. Ce choix architectural permet de gagner de l'espace vital pour chacun tout en préservant l'intégralité du jardin, terrain de jeu précieux pour les enfants.
Une restructuration lumineuse - Le projet ne s'est pas contenté d'ajouter un niveau ; il a permis de repenser entièrement le premier étage :
- Réorganisation spatiale : Création d'une nouvelle salle de bain fonctionnelle et mieux positionnée.
- Volume et Clarté : La nouvelle extension prolonge la maison avec fluidité, apportant plus d'air et de lumière naturelle.
- Un nouveau regard sur la ville : En prenant de la hauteur, la famille bénéficie désormais d'une vue exceptionnelle sur la ville et la silhouette de ses clochers, offrant un nouveau panorama sur le quotidien.
Écrire la suite de l'histoire - Cette intervention respectueuse offre à chaque membre de la famille l'espace dont il a besoin pour s'épanouir, tout en protégeant ce qui rend cette maison précieuse : son charme d'origine et les souvenirs qui y sont ancrés. La maison est désormais prête à abriter les éclats de rire d'une nouvelle génération.

