- OFF - Extension d'une maison de ville
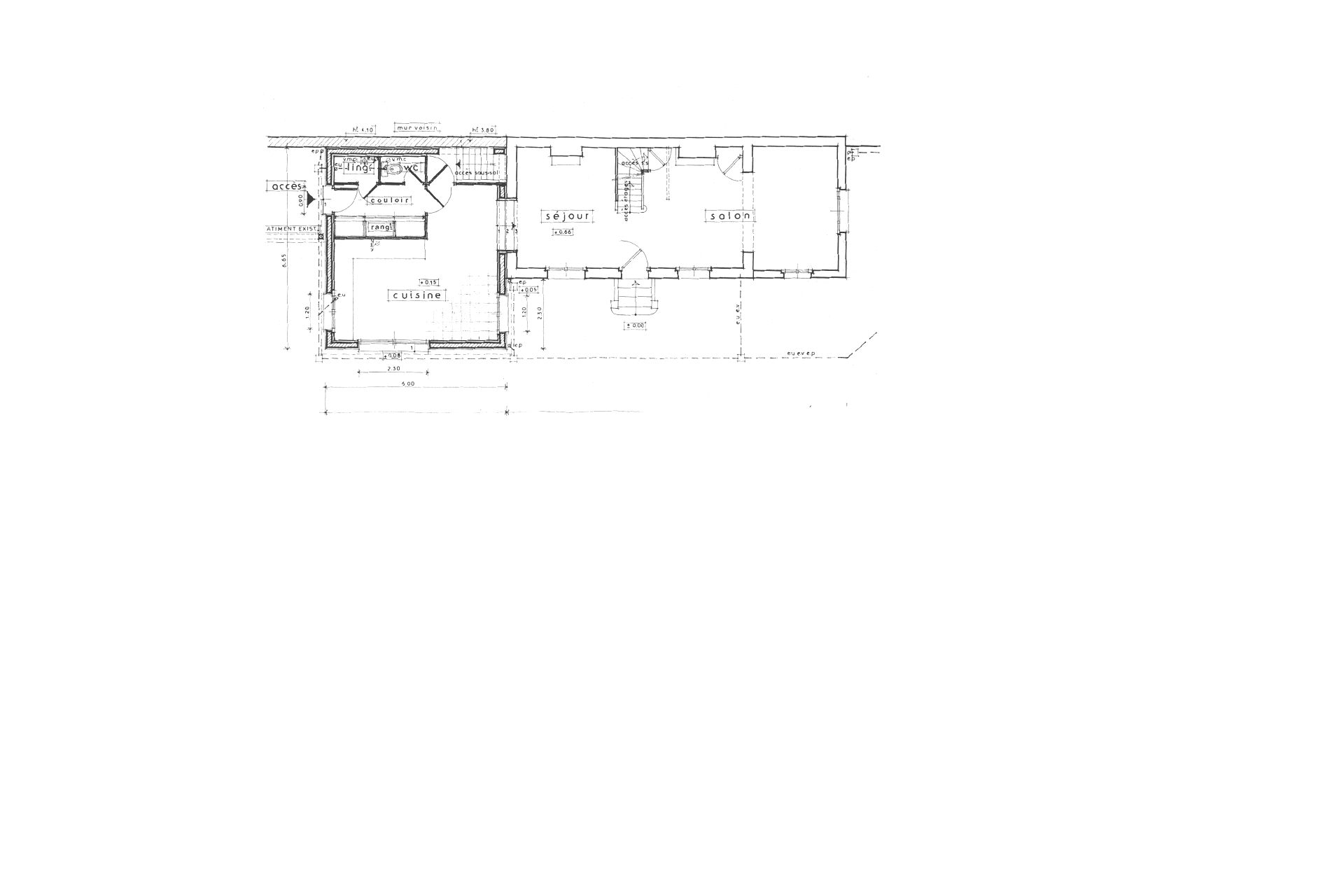
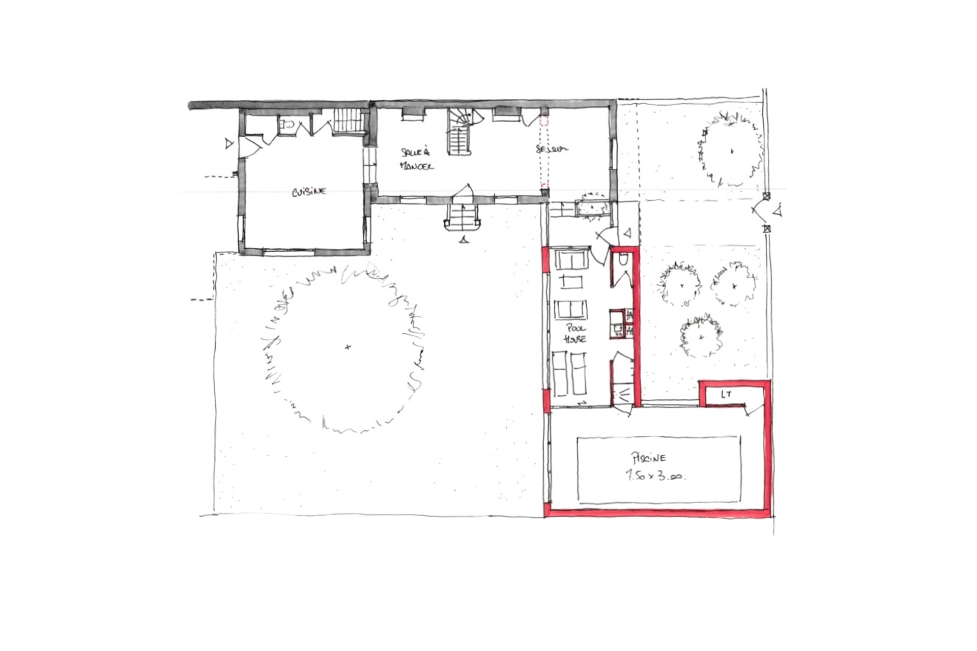
Dessin de conception
Photos Avant- Après


Photos de la réalisation
Description
Ce projet d’extension vise à redonner cohérence et fluidité à une maison déjà agrandie en 2008. Implantée sur une parcelle arborée et intimiste, l’intervention vient se greffer naturellement au bâti existant tout en préservant l’arbre central et l’atmosphère du lieu.
Développée sur deux niveaux, l’extension accueille de nouveaux espaces baignés de lumière : une entrée repensée, un séjour largement ouvert sur le jardin et un espace détente en relation directe avec la piscine et le cœur de la parcelle. Aligné sur les volumes existants, ce nouvel ensemble complète et renforce l’architecture d’origine.
Le choix de matériaux naturels — ardoise, bardage bois, menuiseries aluminium noir — affirme l’identité contemporaine du projet. Discrète et respectueuse de son environnement, l’extension s’insère harmonieusement dans le paysage urbain et valorise pleinement la maison initiale.
















