- HALF - Réorganisation spatiale d'un étage
Photos de la réalisation
Photos Avant- Après




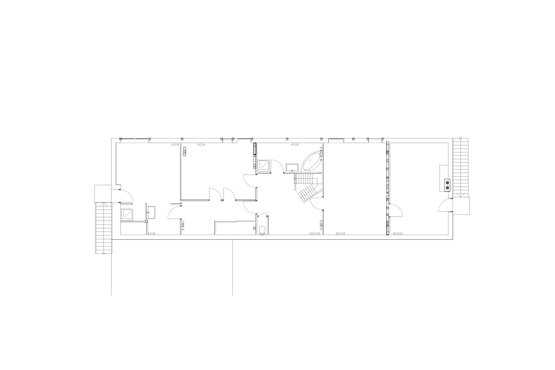
Dessin de conception


Description
Ce projet porte sur la réorganisation complète de l’étage d’une longère située en pleine campagne. Dans le contexte d’une famille recomposée, les usages varient d’une semaine à l’autre : les enfants étant en garde partagée, les espaces doivent pouvoir fonctionner aussi bien pour la vie familiale que pour de la location temporaire lorsque la maison est moins occupée.
Pour offrir cette flexibilité, l’étage a été entièrement repensé. Il accueille désormais cinq chambres réparties en deux zones distinctes :
- Côté filles : deux chambres, chacune équipée de sa propre salle d’eau.
- Côté garçons : chambres organisées autour d’une salle de bains commune.
Un espace central partagé assure la distribution des pièces et dessert l’escalier. Le projet intègre également de nombreux rangements, la création de nouvelles ouvertures de toit et le remplacement des fenêtres afin d’apporter davantage de lumière et de confort. Deux accès indépendants ont été aménagés, permettant de louer chaque aile séparément en toute autonomie.
L’intervention comprend également une amélioration globale des performances techniques du bâtiment : isolation renforcée des plafonds, mise aux normes complète de l’installation électrique, remplacement du système de chauffage existant et installation d’une nouvelle ventilation pour optimiser la qualité de l’air et les performances énergétiques de l’ensemble.










